Дом Августа был построен в 36 году до н.э. Будущий римский правитель жил здесь до того, как стал императором. Когда Октавиан начал строительство дворца на Палатине, перестроенный дом также вошел в состав дворцового комплекса.
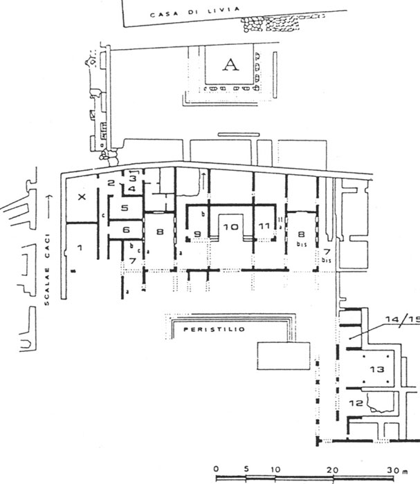
1-6 – личные покои.
5 - Комната масок с богатыми украшениями, напоминающие театральные и сантуарием.
6 - Комната с гирляндой из шишек.
7 – Общая комната с черными стенами и красными панелями с желтыми полосами по углам.
8 - Библиотека оформлена в разных цветовых гаммах: вход большие желтые панели, а дальше красные цвета. Внутренняя часть – красный с зелеными и желтыми лентами.
13 - Большой зал с колоннами.
15 - Студия Августа с изящными и разнообразными украшениями. Здесь преобладают красные, желтые и черные цвета. Потолок был расписан фресками.
Дом Августа пострадал от пожара в 3 году, но был реставрирован.